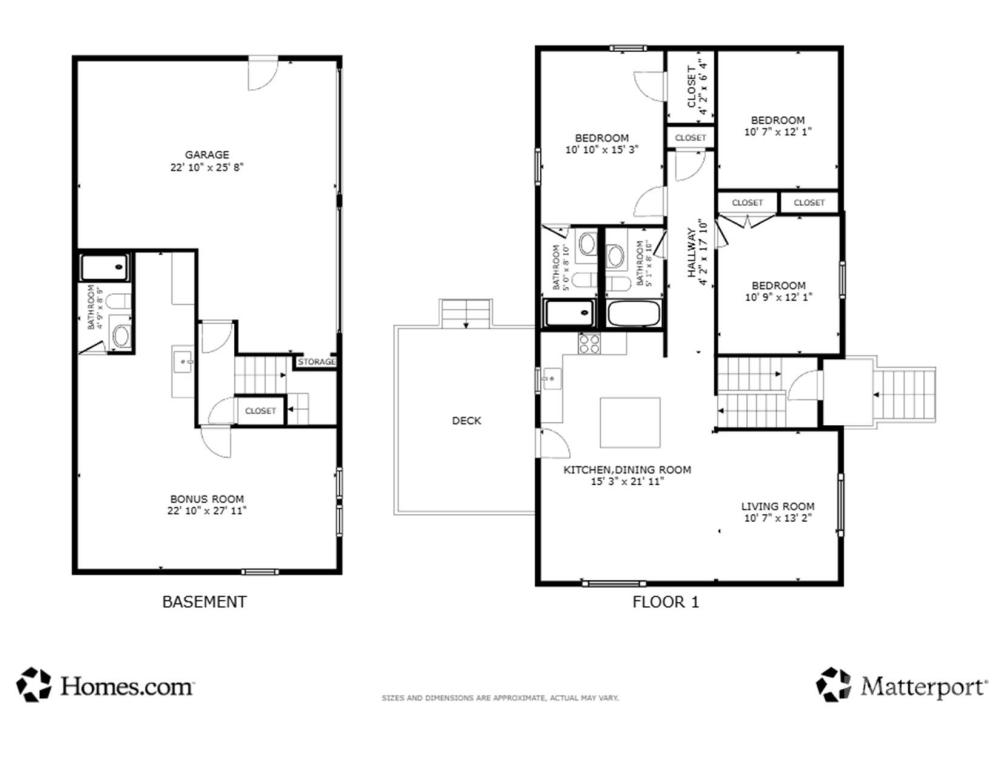
Stunning total remodel from foundation to roof! This nearly 1,900 sq ft home offers 3 bedrooms and 3 full baths, plus a fully finished lower-level second living quarters with private access. Every major system is brand new, including plumbing, electrical, 30-year roof, HVAC, and water heater—providing true peace of mind. The interior features a complete custom upfit with new walls, paint, doors, Low-E windows, and lifetime 28 mil LVP flooring throughout. Designer details shine with matte black fixtures and lighting, custom stair railings, and distinctive river-run matte black interior doors. **Two brand-new kitchens—one on each level—**both showcasing sleek European cabinetry, quartz countertops, soft-close doors and drawers, and custom tile backsplashes. Bathrooms are equally impressive with unique lighting packages and elegant marble tub and shower surrounds. The lower-level suite offers approximately 500 sq ft of flexible living space with a full bath, full kitchen, and a high-quality mini-split heating and cooling system—ideal for multi-generational living, guests, or rental potential. Additional highlights include a custom 12x16 deck, private access to the lower level and garage, a 2-car garage, and dedicated workshop space. A truly one-of-a-kind property combining luxury finishes, flexibility, and modern efficiency.
| MLS#: | 4326333 |
| Price: | $399,900 |
| Square Footage: | 1887 |
| Bedrooms: | 3 |
| Bathrooms: | 3 |
| Acreage: | 0.46 |
| Year Built: | 1974 |
| Type: | Single Family Residence |
Based on information submitted to the MLS GRID as of 2026-03-07 00:00:00. All data is obtained from various sources and may not have been verified by broker or MLS GRID. Supplied Open House Information is subject to change without notice. All information should be independently reviewed and verified for accuracy. Properties may or may not be listed by the office/agent presenting the information. Some IDX listings have been excluded from this website.
Contact An Agent:

































