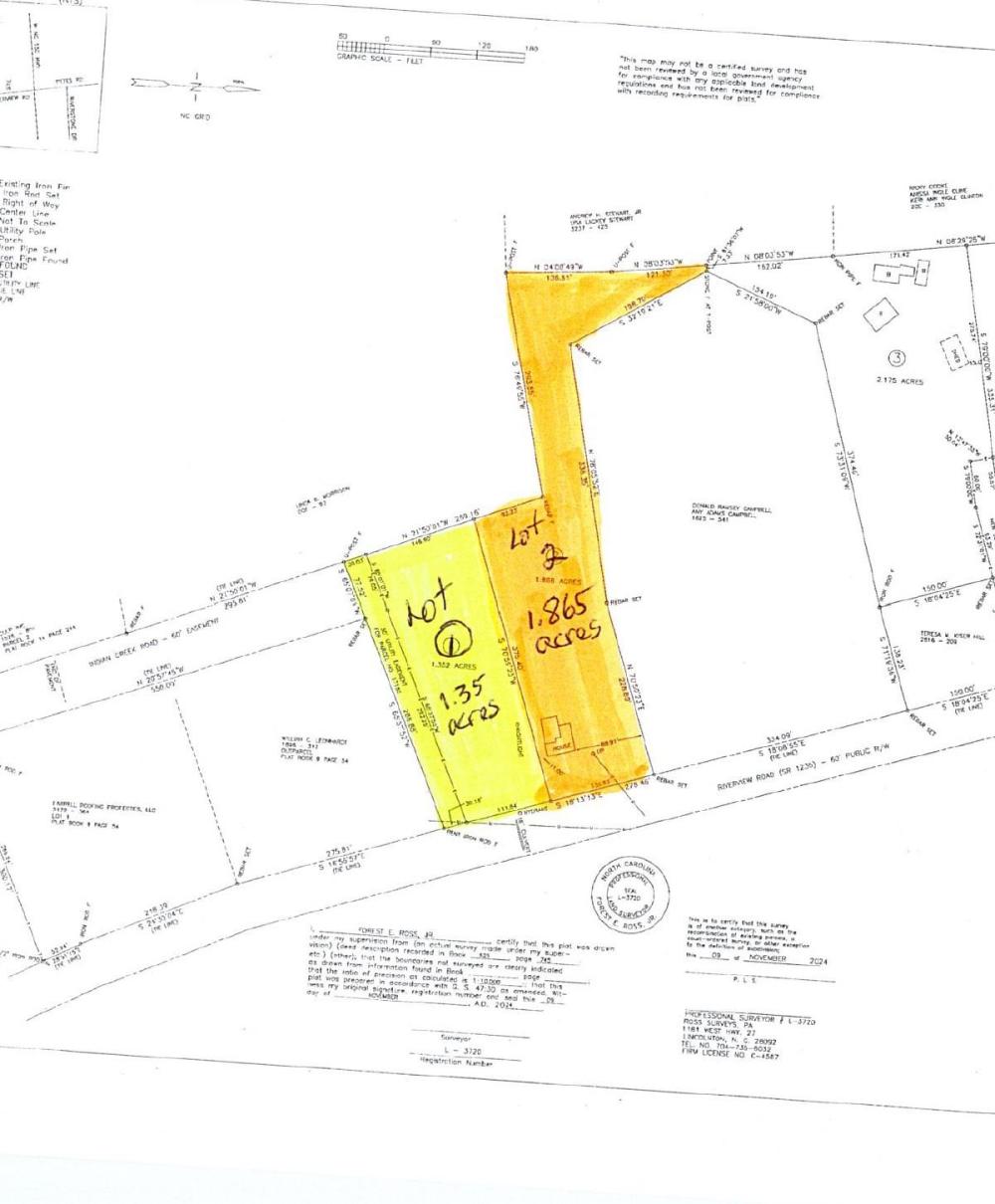
1672 Riverview Road
$100,000 Active
Subdivision:
Charming fixer-upper with tons of potential! This small cabin-style home offers 2 bedrooms and 1 bath, ready for your vision and updates. Nestled on a beautiful lot that blends open space with wooded surroundings, it’s the perfect mix of nature and possibility. A spacious rear deck overlooks the peaceful setting, and the right side of the property offers great privacy. With a few thoughtfully placed trees, the left side can offer the same seclusion. County water is connected, and an old well also exists on-site. A new driveway will be needed for access. Whether you're looking for a weekend retreat, rental opportunity, or full-time home, this property is a great place to start fresh.
Back to Property List
Basic Information
Listing courtesy of: Century 21 Town & Country Rlty - debrapope.realtor@gmail.com
| MLS#: | 4271400 |
| Price: | $100,000 |
| Square Footage: | 917 |
| Bedrooms: | 2 |
| Bathrooms: | 1 |
| Acreage: | 1.87 |
| Year Built: | 1920 |
| Type: | Single Family Residence |
Based on information submitted to the MLS GRID as of 2026-03-07 00:00:00. All data is obtained from various sources and may not have been verified by broker or MLS GRID. Supplied Open House Information is subject to change without notice. All information should be independently reviewed and verified for accuracy. Properties may or may not be listed by the office/agent presenting the information. Some IDX listings have been excluded from this website.
Contact An Agent:














