5054 Carolina North Drive
$810,997 Under Contract - No Show
Subdivision: Carolina North
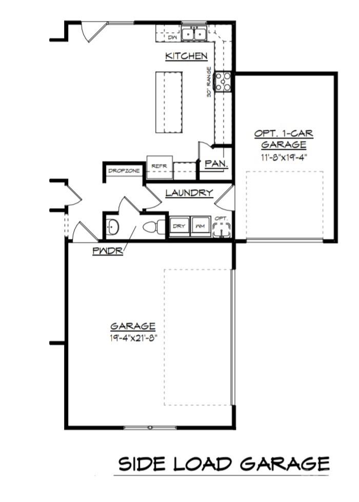
Welcome to Carolina North!!! Huge 1-3 acre homesites!!! Peaceful country setting with all the conveniences just minutes away!! This listing features our Hampshire Plan...primary down...with great included features like crawlspace foundations, side load garages, deluxe gourmet kitchens with large islands, and covered back decks!!! We have 8 lots in the community and multiple floor plans to choose from. Close to Lake Wylie for shopping, restaurants, and incredible recreation!! Contact today for more information and status updates on inventory homes that are under construction.
Back to Property List
Basic Information
Listing courtesy of: ProStead Realty - mikejonesbroker@gmail.com
| MLS#: | 4299056 |
| Price: | $810,997 |
| Square Footage: | 3139 |
| Bedrooms: | 4 |
| Bathrooms: | 3.1 |
| Acreage: | 1.67 |
| Year Built: | 2025 |
| Type: | Single Family Residence |
Based on information submitted to the MLS GRID as of 2026-03-07 00:00:00. All data is obtained from various sources and may not have been verified by broker or MLS GRID. Supplied Open House Information is subject to change without notice. All information should be independently reviewed and verified for accuracy. Properties may or may not be listed by the office/agent presenting the information. Some IDX listings have been excluded from this website.
Contact An Agent:



