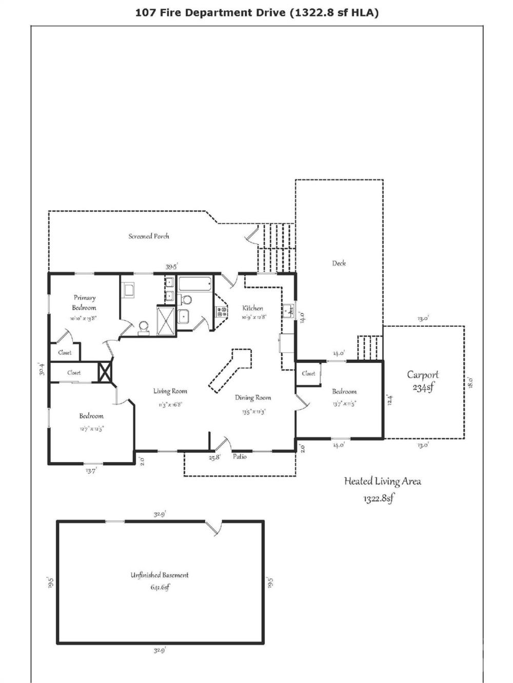
This ranch home in popular Belmont is loaded with fantastic interior updates and sits on a sprawling one acre lot with an adjacent workshop. As you step inside you are welcomed into a bright, open concept where the living room, dining room and kitchen create an inviting space for relaxing and entertaining. Movie buffs and reality TV junkies alike will love the included Bose home theater system with projection screen and surround sound. For the best theater experience the home has been equipped with blackout shades. The bright and completely remodeled kitchen features white upper cabinets with painted lower cabinets, quartz countertops, white subway tiled backsplash and stainless steel appliances. The six-burner gas stove is the centerpiece of the kitchen and features convection oven, griddle plate and wok ring with modern steel shelving above. Enjoy the outdoors from the roomy screened-in porch complete with swing, dimmable lighting, two rotating fans and Bose speakers. The backyard is fully fenced, a great place for the 4-legged members of your family! The detached workshop is wired for electricity and has a dedicated 220-V line and 60 gallon professional mechanics air compressor, ideal for the do-it-yourself enthusiast. Tucked away on a quiet cul-de-sac situated evenly between Belmont and Mount Holly, it offers convenient proximity to locally owned restaurants, breweries and shops. Nature lovers will delight in the easy access to the Whitewater Center and with only 15 minutes to Uptown Charlotte, this property gives you the convenience of the big city with a small town vibe.
| MLS#: | 4342619 |
| Price: | $395,000 |
| Square Footage: | 1323 |
| Bedrooms: | 3 |
| Bathrooms: | 2 |
| Acreage: | 1.01 |
| Year Built: | 1960 |
| Type: | Single Family Residence |
| Virtual Tour: | Click here |
Based on information submitted to the MLS GRID as of 2026-03-07 00:00:00. All data is obtained from various sources and may not have been verified by broker or MLS GRID. Supplied Open House Information is subject to change without notice. All information should be independently reviewed and verified for accuracy. Properties may or may not be listed by the office/agent presenting the information. Some IDX listings have been excluded from this website.
Contact An Agent:














































